Fontanel groupe
MENU
04 72 26 39 70
Nos logements neufs
Tous nos programmes
Les avantages du neuf
Les étapes de la VEFA
PTZ
Loi pinel
Statut LMNP
Qui sommes-nous ?
Notre Organisation
Nos Valeurs
Immobilier tertiaire
Nos références
Gestion Immobilière
Actualités
Accueil
Nos logements neufs
Nos logements neufs
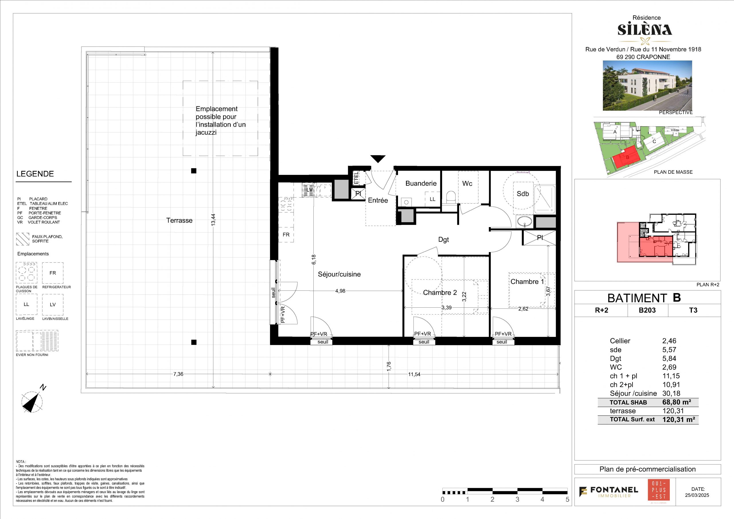
Programme immobilier neuf Silèna Craponne Lyon
←
SILENA
Programme immobilier neuf Silèna Craponne Lyon
By
Alexandra
|
Published
2 avril 2025
|
Full size is
2560 × 1440
pixels
Programme immobilier neuf Silèna Craponne Lyon
25 03 25 - B203
Programme immobilier neuf Silèna Craponne Lyon
Programme immobilier neuf Silèna Craponne Lyon